Costa Blanca, Torrevieja
Résidence familiale à Torrevieja
À partir de 275.000,00 €
Cette résidence familiale à Torrevieja est un tout nouveau projet situé aux portes des marais salants de avec comme toile de fond la magnifique Lagune Rose et l’envolée de ses majestueux flamands roses.
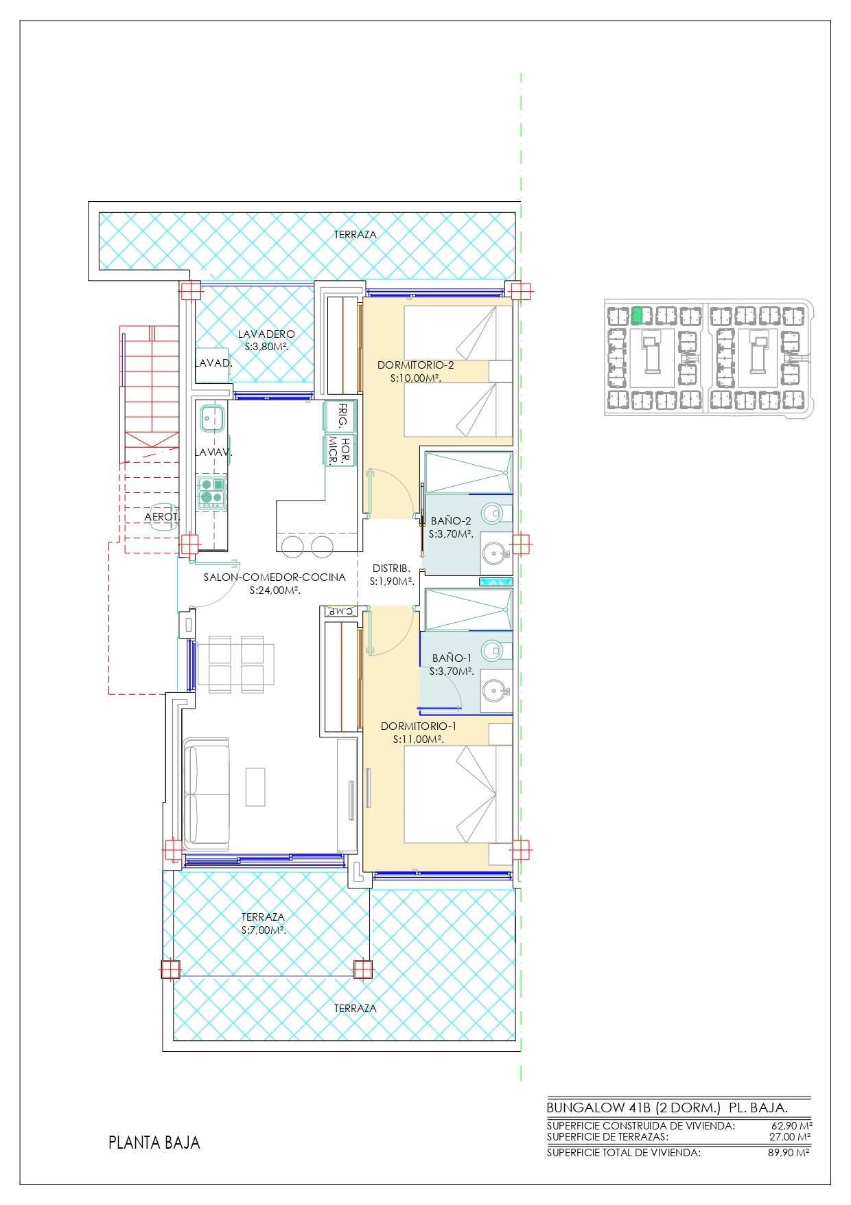
Rez-de-jardins, penthouses
2 – 3
2
Place de parking en option









